Precast Concrete Available in NJ
Mershon Concrete offers a wide range of pre-cast products for any size job. Products include septic tanks, grease traps and dry wells in NON-H20 and H20 units, Amthidrome systems, meter pits, concrete extensions, distribution boxes, car and truck bumpers, concrete slabs, waste (bin) blocks, splash blocks, well rings, concrete columns, lamp bases, concrete picnic table and benches, flowerpots.
Click Below To See Our Pre-Cast Product Specific Details
Meter Box
Splash Blocks
City skyline
Photo By: John Doe
Button
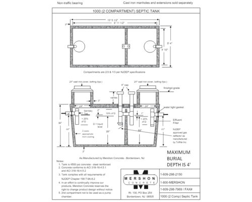
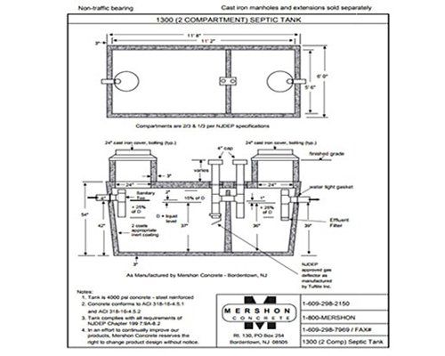
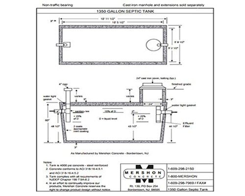
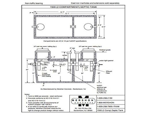
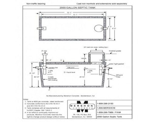
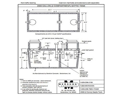
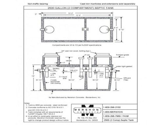
Septic Tanks
EXTENSION
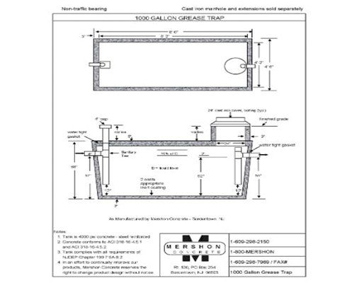
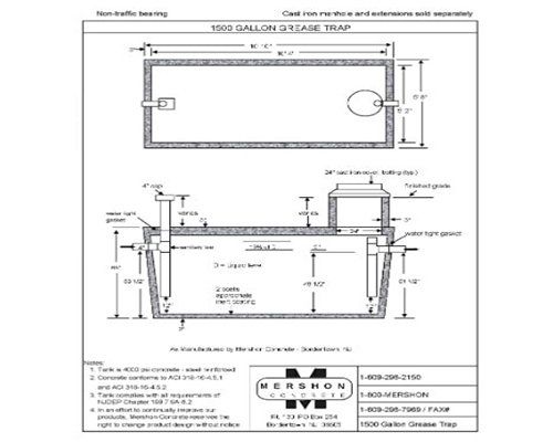
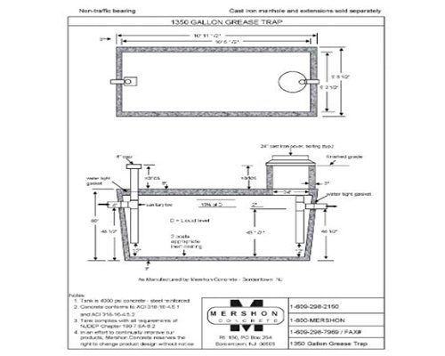
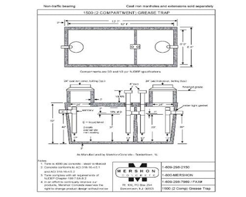
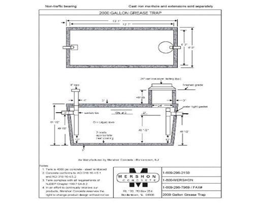
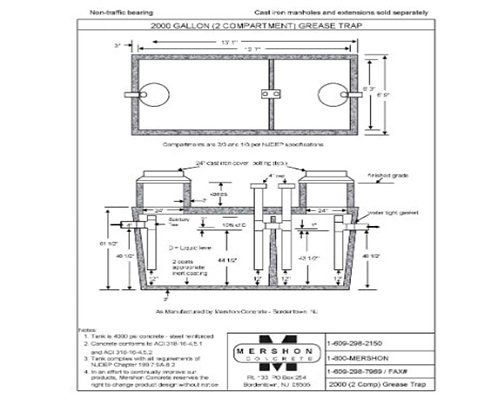
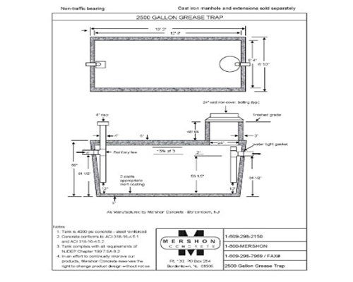
GREASE TRAPS
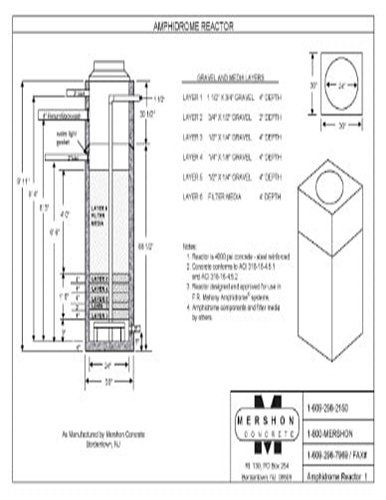
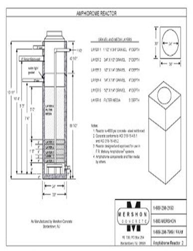
AMPHIDROME SYSTEM
BUMPERS
WASTE BLOCKS
WELL RING
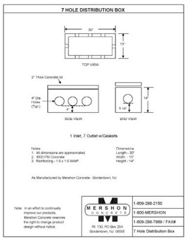
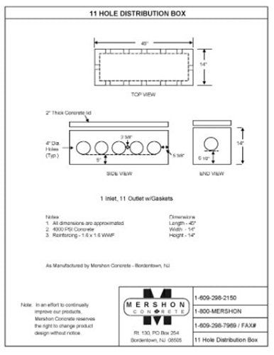
D BOXES
DRY WELLS
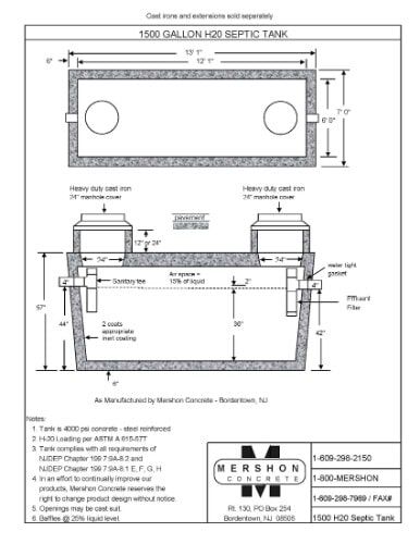
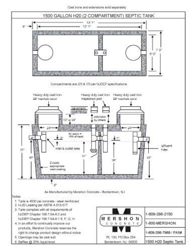
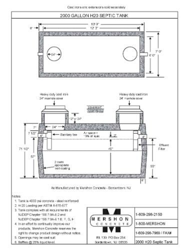
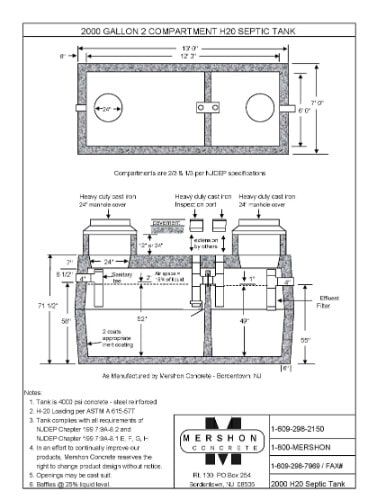
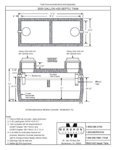
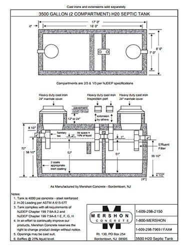
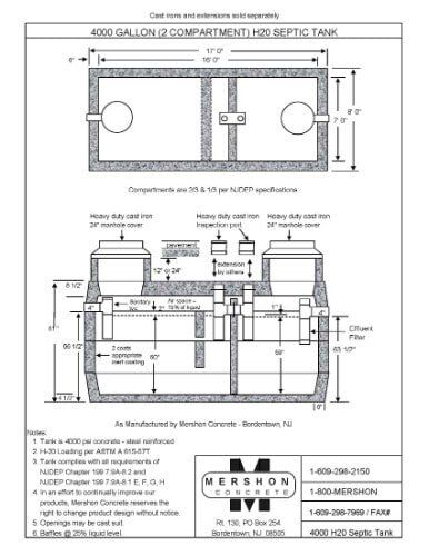
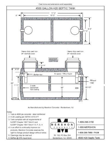
H2O SEPTIC TANKS
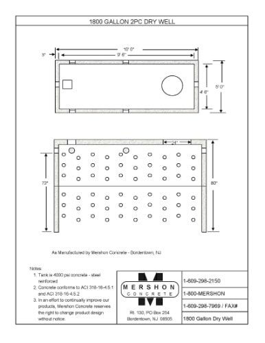
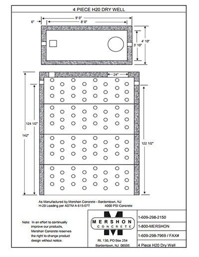
H2O DRY WELLS
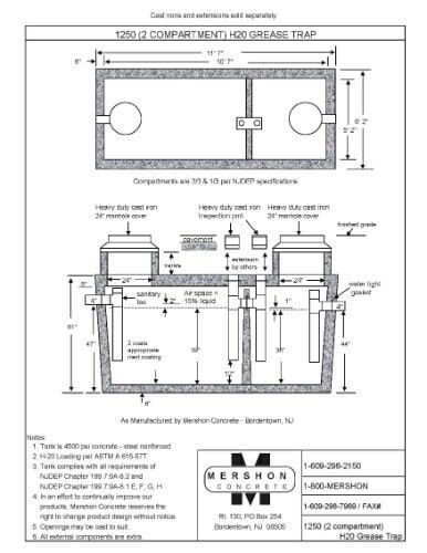
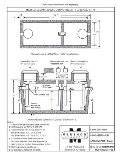
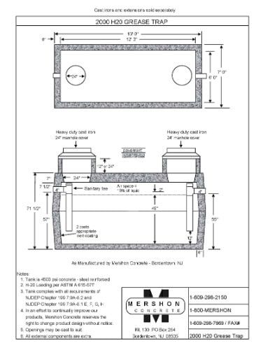
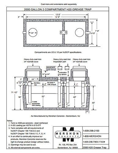
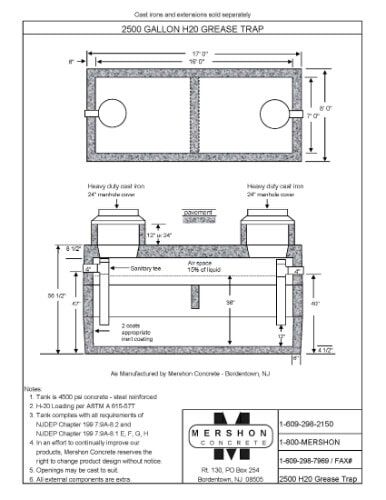
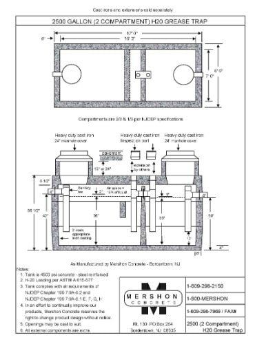
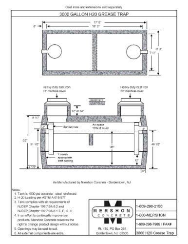
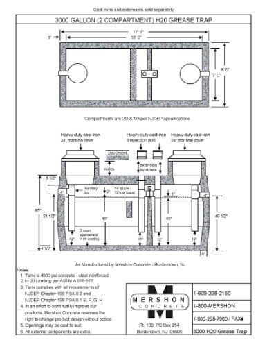
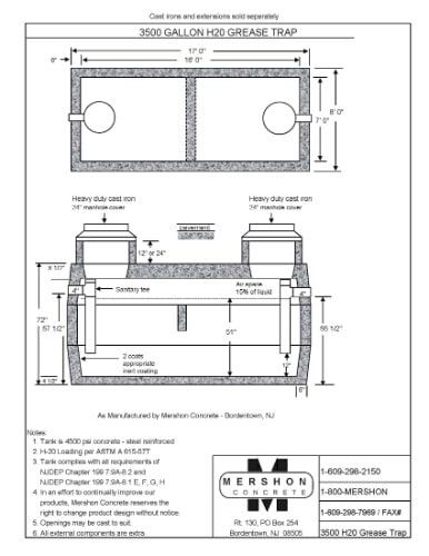
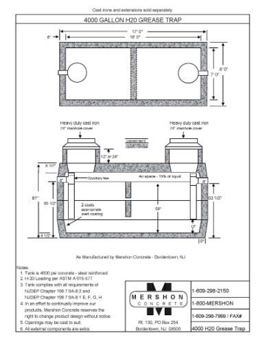
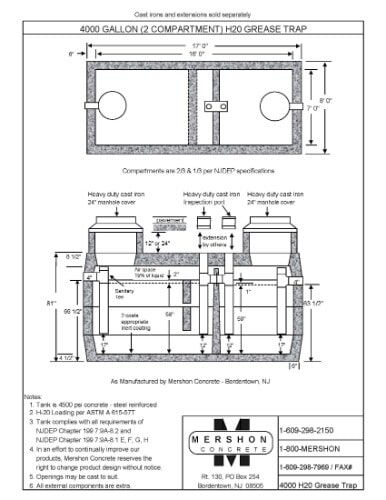
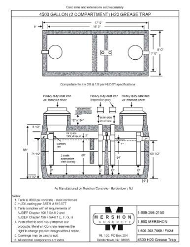
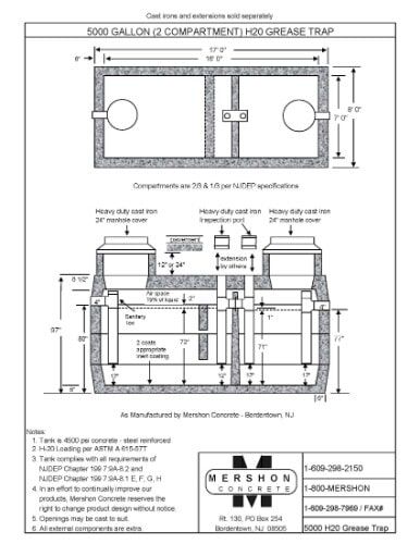
H2O GREASE TRAPS






























































































